Située dans une rue paisible en face du bois communal de Rixensart, cette élégante villa proposée par Grant Properties séduit dès l’entrée par sa luminosité constante et son atmosphère chaleureuse ; rénovée avec soin en 2017, elle offre ± 175 m² habitables (200 m² bruts), 5 chambres, 2 salles de bain, un grenier isolé, une cave, deux WC, ainsi qu’un charmant jardin orienté sud-ouest et un parking pour deux véhicules ; pensée pour le confort, elle bénéficie de prestations haut de gamme : isolation renforcée (+++), toiture et cheminée neuves, électricité conforme, châssis PVC double vitrage sécurisés, porte sécurisée 3 points, velux avec volets solaires — autant d’atouts qui en font une maison prête à vivre, mais aussi parfaitement adaptée à une profession libérale grâce à la possibilité d’y aménager deux espaces professionnels au rez-de-chaussée ; à seulement 3 minutes de la gare et 6 minutes de la E411, proche de toutes commodités, cette propriété combine à merveille confort moderne, accessibilité et qualité de vie dans un cadre naturel privilégié. PEB D - électricité conforme - chaudière individuelle au mazout. Disponible à l'acte !
Données générales
Type du bienVilla
VilleRIXENSART
Date de construction1958
Superficie totale175 m2
StatutSous compromis
DisponibilitéA l'acte
Chambres5
Salle de bain2
Jardin1
Données financières
Prix665 000 €
Données énergétiques
PEB Label
E-Spec301 kWh/m2/an
Informations techniques
Conformité ElectriqueOui, conforme RGIE
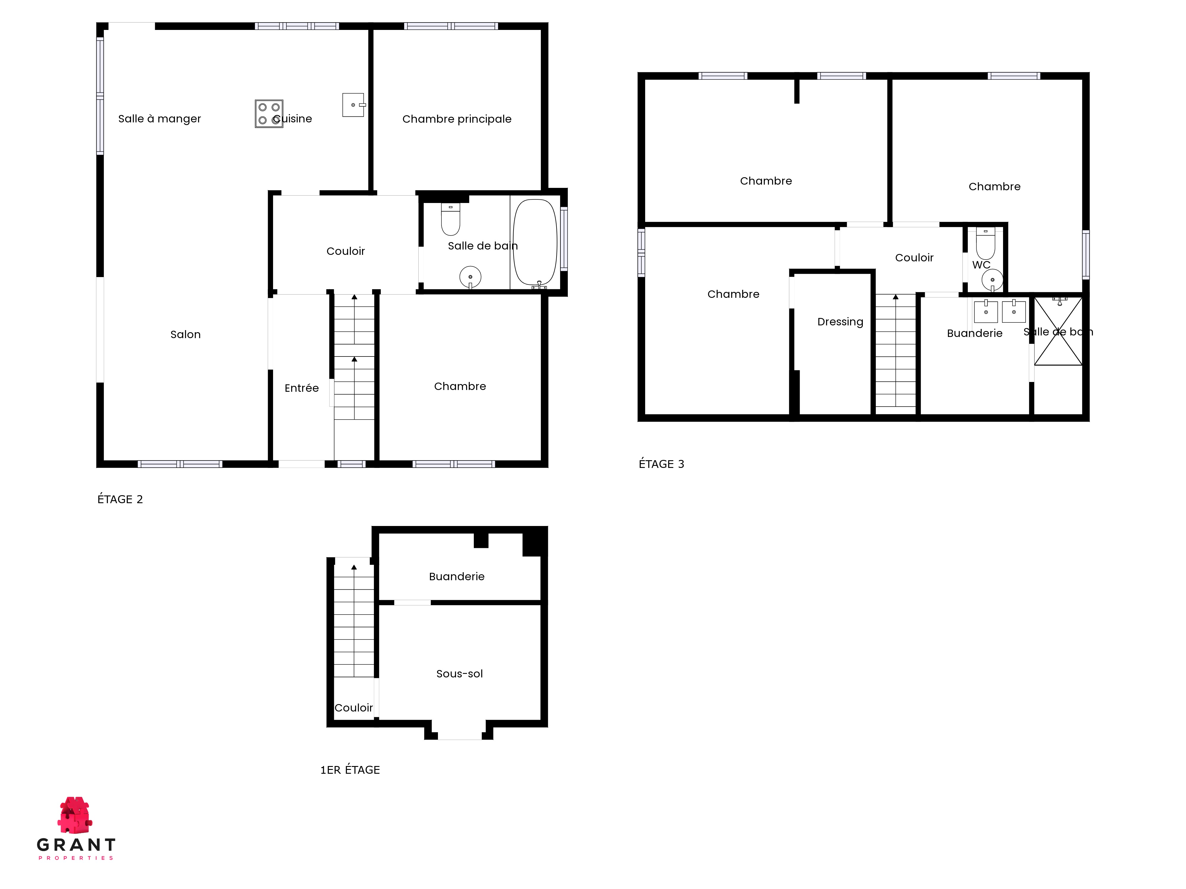
Composition
Rez-de-chaussée
Hall d'entrée:14 m2
Salon:21 m2
Salle à manger:8 m2
Cuisine équipée:11 m2
Chambre à coucher 1:12 m2
Chambre à coucher 2:12 m2
Salle de bains:6 m2
Premier étage
Hall de nuit:6 m2
Dressing:3 m2
Chambre à coucher 3:10 m2
Chambre à coucher 4:11 m2
Chambre à coucher 5:11 m2
Salle de douche:6 m2
Toilette 2:1 m2
Cave(-1)
Cave:17 m2
Équipements supplémentaires
Châlet de jardin, Fosse septique + égouts (système mixte), Volets