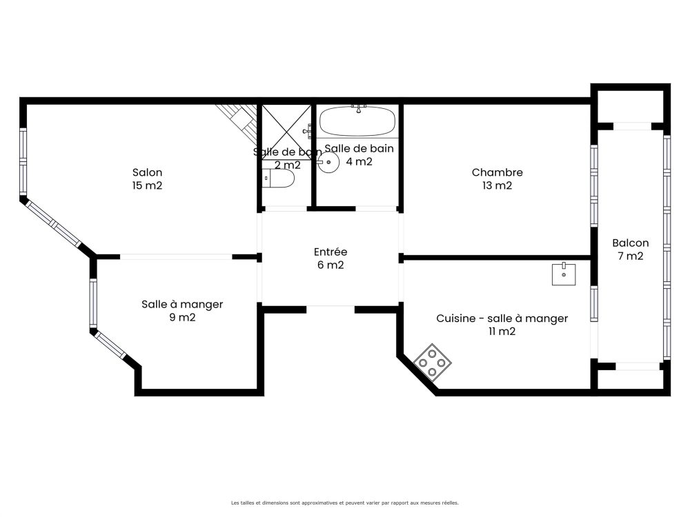
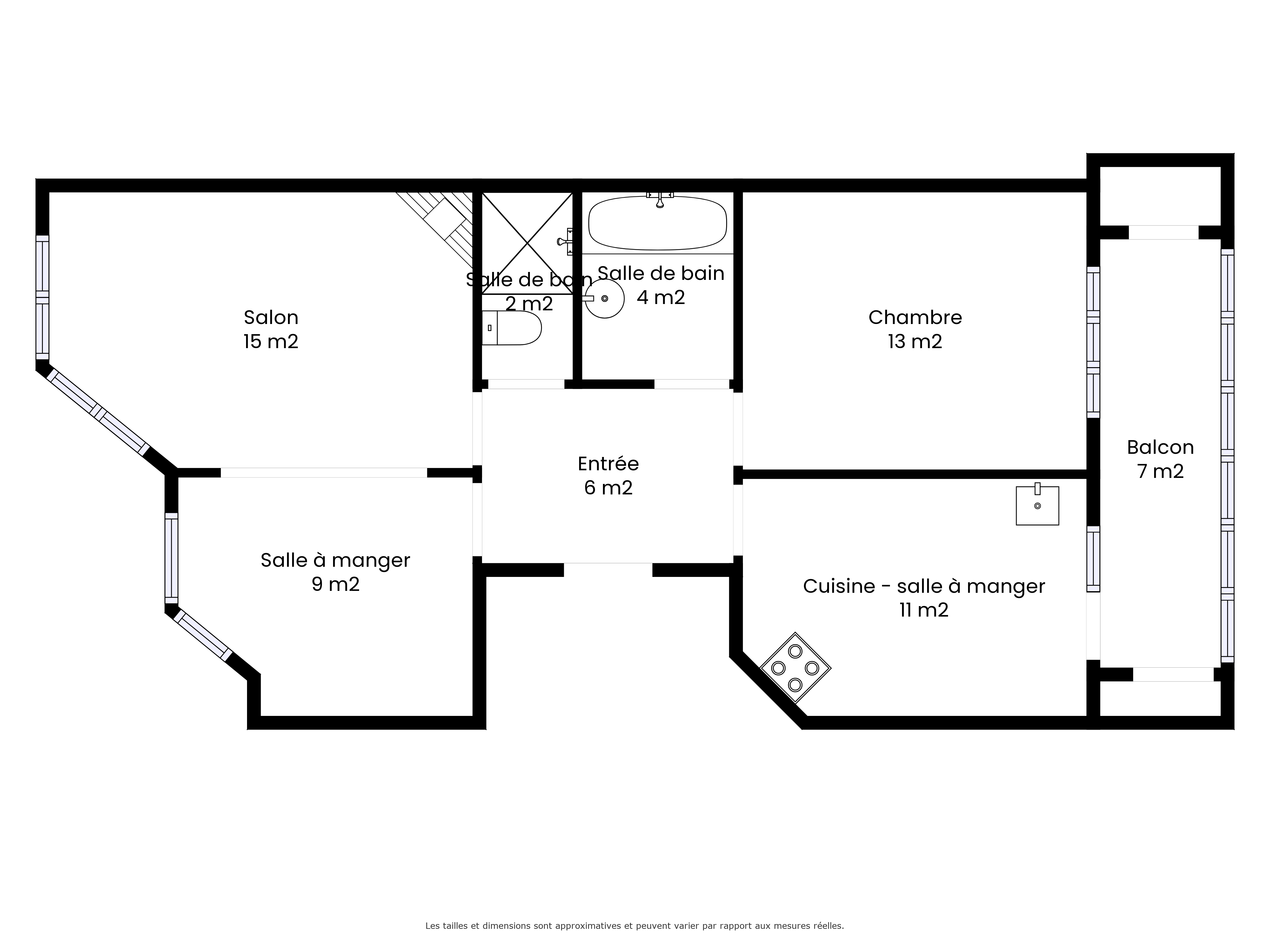
CHANT D'OISEAU - À proximité immédiate du Boulevard du Souverain, et de toutes ses commodités (transports, commerces, parcs…), découvrez cet agréable appartement 1 chambre (configuration d’origine : 2 chambres) situé au 3e et dernier étage d’un petit immeuble de 3 unités à faibles charges. D’une superficie de ± 78 m² bruts (± 70 m² habitables), il se compose d’un hall d’entrée, d’un séjour lumineux, d’une salle à manger (pouvant être reconvertie en deuxième chambre), d’une cuisine donnant accès à une terrasse, d’une chambre, d’une salle de bains et d’un WC séparé. Une cave privative ainsi qu’un jardin privatif au rez-de-chaussée complètent cet ensemble. Les charges communes s’élèvent à environ 35 €/mois (assurance bâtiment + électricité des communs) et toutes les consommations sont individualisées (eau, gaz, électricité). Libre à l’acte ! Un bien idéal pour un premier achat ou un investissement dans un quartier recherché et verdoyant.