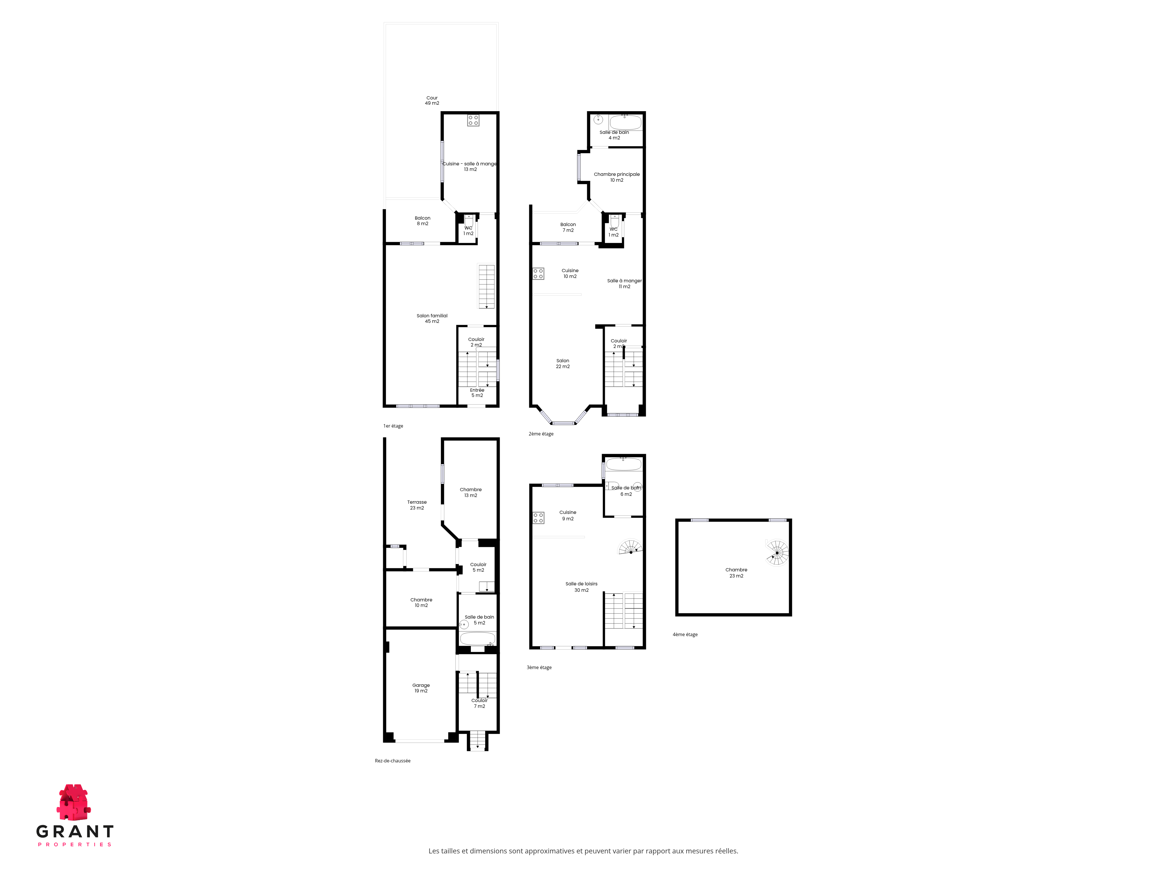
COUP DE COEUR! Emplacement très recherché, dans une belle avenue arborée - Très lumineuse maison unifamiliale de +- 250m² entièrement rénovée en 2008 et actuellement aménagée en 3 appartements (depuis 2008 - sans permis). AU RDC: cave, garage, parking. Au bel étage et demi sous-sol - Appartement duplex de +- 110m²: spacieux living, terrasse, cuisine équipée, 2 chambres, SDB, terrasse et jardin (sud-est). Au 1er étage - Appartement +- 65m²: living, cuisine équipée ouverte, terrasse, chambre et SDB. Au 2ème étage - appartement +- 65m²: living, cuisine équipée ouverte, SDB et chambre sous combles. Cave, garage, emplacement de parking, plusieurs terrasses, jardin +- 50m². Châssis double vitrage bois (2003), électricité non conforme, PEB F, F et D, 3 chaudière indiv. au gaz à condensation (2019, 2022, 2022), toiture rénovée et isolée (2008). Obligations locatives à respecter. Proche des transports (bus 27,28,80 - tram 7, 27 - métro Joséphine Charlotte). Accès rapide E40, R0, centre.
Demande de renseignements urbanistiques en cours auprès de la commune.
Visite Virtuelle : https://nodalview.com/s/1alDnG3QbCRg3iMmK9cEgR
VIDEO:
https://www.youtube.com/watch?v=lBiCk8Nc33Q